CamperOnLine
  • Camper
    • Camper usati
    • Camper nuovi
    • Produttori
    • Listino
    • Cataloghi
    • Concessionari e rete vendita
    • Noleggio
    • Van
    • Caravan
    • Fiere
    • Rimessaggi
    • Le prove di CamperOnLine
    • Provati da voi
    • Primo acquisto
    • Area professionisti
  • Accessori
    • Accessori e Prodotti
    • Camping Sport Magenta accessori
    • Produttori
    • Antenne TV
    • Ammortizzatori
    • GPS
    • Pneumatici
    • Rimorchi
    • Provati da Voi
    • Fai da te
  • Viaggi
    • Diari di viaggi in camper
    • Eventi
    • Foto
    • Check list
    • Traghetti
    • Trasporti
  • Sosta
    • Cerca Strutture
    • Sosta
    • Aree sosta camper
    • Campeggi
    • Agriturismi con sosta camper
    • App Camperonline App
    • 10 Consigli utili per la sosta
    • Area strutture
  • Forum
    • Tutti i Forum
    • Sosta
    • Gruppi
    • Compagni
    • Italia
    • Estero
    • Marchi
    • Meccanica
    • Cellula
    • Accessori
    • Eventi
    • Leggi
    • Comportamenti
    • Disabili
    • In camper per
    • Altro Camper
    • Altro
    • Extra
    • FAQ
    • Regolamento
    • Attivi
    • Preferiti
    • Cerca
  • Community
    • COL
    • CamperOnFest
    • Convenzioni Convenzioni
    • Amici
    • Furti
    • Informativa Privacy
    • Lavoro
  • COL
    • News
    • Newsletter
    • Pubblicità
    • Contatto
    • Ora
    • RSS RSS
    • Video
    • Facebook
    • Instagram
  • Magazine
  • Italiano
    • Bienvenue
    • Welcome
    • Willkommen
  • Accedi
CamperOnLine
Camping Sport Magenta
  1. Forum
  2. Tecnica
  3. Cellula abitativa
Galleria

cerco schema elettrico scheda CRAMER e problema BM

Rispondi
Cerca
SostaGruppiCompagniItaliaEsteroMarchiMeccanicaCellulaAccessoriEventiLeggiComportamentiDisabiliIn camper perAltro CamperAltroExtra Attivi
1 20 0
8
LukeS
LukeS
25/09/2017 61
Rispondi Abuso
Inserito il 23/02/2020 alle: 18:58:33
Salve
Ho un problema sul mio burnster a620,
praticamente a motore acceso, oppure con caricabatterie da rete acceso , si accende la spia su ON. ed il quadro, 
ma di fatto le utenze, luci, pompe quant'altro non funzionano se non rispingo ON ed i relativi sotto pulsanti. Una volta spinto funzionano, se spingo OFF, si spengono ma il quadro ed il relativo led  ON rimango accesi.

A motore spento e staccato da rete, se stacco la batteria e la riattacco, il quadro è spento, dal momento che spingo ON, funziona tutto, ma se vado a staccarlo....come sopra, tutto staccato tranne la spia ON ed il quadro.

Ho notato che quando attacco la rete o metto i moto...sento un relè..TIC TAC di continuo, fino a quando non spingo ON.
sennò potrebbe essere un problema del pulsante in se?

Mi chiedo è probabile che si inserisca da solo perchè gli arriva più corrente quando è sotto tensione?
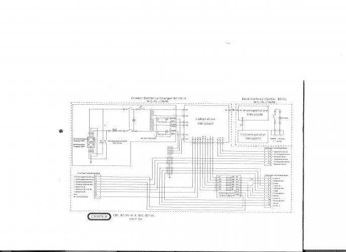
lo schema che cerco dovrebbe essere la 24589 o 2590

Inoltre ho un assorbimento della BM, Uso lo staccabatterie, le uniche cose che rimangono attaccate sono l'allarme (controllato e non assorbe) e Il cavo che monitora la tensione dalla centralina della BM,....
poi ci sono gli altri cavi che non so da dove partono .....cavo che dalla BM va alla centralina (che in teoria dovrebbe essere sotto staccabatterie, quando viene caricata dal caricabatterie della cellula, oppure il cavo che dall alternatore va alla BS passando per la centralina, posso esser causa di assorbimenti anomali?

allego foto scheda, foto quadro comandi e suo schema
nel caso avete contatti per scrivere alla CRAMER ora DOMETIC?
scheda 
p2612011.jpg

quadro 
DSC_0480.JPG
PannelloComandiCramer_1.jpg
LukeS
SostaGruppiCompagniItaliaEsteroMarchiMeccanicaCellulaAccessoriEventiLeggiComportamentiDisabiliIn camper perAltro CamperAltroExtra Attivi
Argomenti recenti dal forum
Viaggi in Italia
Segnalazione area sosta camper Potenza (PZ)
Buonasera a tutti,volevo segnalare che l'area sosta camper a Potenza ,in via zara e in fas...
Spadino69
Ieri alle: 17:58
Accessori
Caricabatterie Blue Smart IP22 1 o 3 uscite?
Buongiorno a tutti, nel piano di upgrade elettrico, sono arrivato al CB da 220. Direi che ...
isauri
Ieri alle: 10:28
Cellula abitativa
Isolamento pavimento
Buonasera ragazzi, non avendo sul mio veicolo (semintegrale) il doppio pavimento, volevo, ...
fjordland
10/04/26 - 20:43
Altro sui camper
Finestra scardinata dal vento
Buonasera. Chiedo consiglio ai più esperti di me: L’altro giorno mentre eravamo in sosta c...
vaicolvento
10/04/26 - 19:23
Altro sui camper
Camperista sprovveduto cerca aiuto
Preambolo: trovo un camper da un concessionario che vende camper usati. Il camper è del 20...
crucco_02
10/04/26 - 15:45
Accessori
Batteria Litio per Adria Twin Sport 640 (2024)
Ho letto migliaia di post su questo argomento ma onestamente non ho le idee chiare su cosa...
mavalle
10/04/26 - 14:23
Meccanica
Motore Ford 2200cdi 100cv
Buongiorno a tutti, sto acquistando un camper del 2007 semintegrale, allestimento MC Louis...
FM79
10/04/26 - 09:04
Altro sui camper
Sabotaggio?
Ultimamente ho la sensazione che gli interventi sul forum siano diminuiti. I messaggi dell...
Giovanni
09/04/26 - 16:52
Meccanica
Aiuto Ducato 230 anno 2000
Ho subito un danno al vano motore dove un gatto rimasto intrappolato ha strappato alcuni f...
antonio867
09/04/26 - 16:26
Cellula abitativa
Specchio retrovisore e remis ducato 8
Ciao a tutti, come da titolo sul mio van su Ducato 2025 non ho lo specchio retrovisore, ma...
volvo960
09/04/26 - 16:20
Accessori
copricerchi hymer b544 anno 1997
Ciao sto cercando senza fortuna i copricerchi quelli argentati e bombati per intenderci sa...
suoz
09/04/26 - 16:07
Cellula abitativa
Letti gemelli basculanti su Chausson 630 Welcome
Salve il mio camper è dotato di due letti gemelli basculanti che si abbassano e una person...
ernesto24
09/04/26 - 14:17
167k Facebook
343k Instagram
42,6k TikTok
73,3k Youtube
CamperOnLine - Copyright © 1998-2026 - P.Iva 06953990014
Informativa privacy
Loading...

Accedi

Recupera Password
Nuovo utente

Vuoi eliminare il messaggio?

Sottoscrizione

Anteprima

PREFERENZA

Il messaggio è in fase di inserimento.

loading

CamperOnLine

Buongiorno gentile utente,

da oltre 20 anni Camperonline offre gratuitamente tutti i suoi servizi
grazie agli inserzionisti che ci hanno dato la loro fiducia, permettici di continuare il nostro lavoro disattivando il blocco delle pubblicità.

Grazie della collaborazione.

Azione eseguita con successo

Azione Fallita

Condividi

Condividi questa pagina con:

O copia il link