
In risposta al messaggio di Worse91 del 01/10/2025 alle 12:21:07A guardare quel fusibile bianco credo da 25A, mi viene in mente che qualcuno nel montare una seconda BS abbia pensato di aumentare tale portata non sapendo però che ciò non aumenta la corrente verso le batterie ma aumenta solo il rischio di bruciare qualcosa e temo sia accaduto proprio questo.
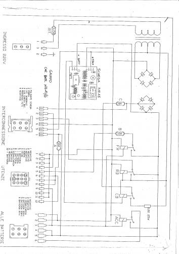
Salve a tutti , stò cercando di sistemare un camper ci riviera , che ho acquistato, di fatto la metá degli impianti non funziona correttamente , la centralina nord elettronica NE13/G , non cambia linea dalla 12/220 , erimane fissa su alcune funzioni , io credo che sia un problema di relè ,anche perchè sembra che ne siano stati montati dei tipi a caso ( sono tutti diversi , e alcuni a 4 contatti montati su slot da 5) , io ho cercato sul web quali erano in origine i relè originali , ma non ho trovato nulla , soltanto lo schema elettrico, senza caratteristiche dei componenti , qualcuno saprebbe indicarmi, le sigle dei relè originali ? Mi sarebbe di grande aiuto...grazie comunque, Alessandro
In risposta al messaggio di banoyo del 01/10/2025 alle 13:51:53Ok , provo ad aggiornare i valori dei fusibili, sperando non so sia cotto nulla , ma mi sai dire la sigla dei relè che devo prende ? Perché non sono molto esperto e visto che quelli che ci sono mi sembrano errati , devo andare a comprarli...
Come si vede dallo shema elettrico sono quattro relè, tutti a 4 pin con contatto NO. Hai i fusibili di valore errato rispetto a quelli nello schema a blocchi e a questa foto: Ti conviene controllare bene del perchè tu hai valori diversi.
In risposta al messaggio di Worse91 del 01/10/2025 alle 17:24:35Aspetta, ho visto meglio lo schema e in realtà un relè a 5 pin c'è.
Ok , provo ad aggiornare i valori dei fusibili, sperando non so sia cotto nulla , ma mi sai dire la sigla dei relè che devo prende ? Perché non sono molto esperto e visto che quelli che ci sono mi sembrano errati , devo andare a comprarli...
https://www.amazon.it/Bosch-098...
https://www.amazon.it/dp/B088GF...
https://www.amazon.it/ABSOPRO-4...
