In risposta al messaggio di lauraugo del 24/10/2018 alle 22:49:22Che centra lo schema che ai postato con la centralina ? Se vuoi sfruttare i pannelli per mantenere la carica delle batterie motore e servizi, ti serve un parallelatore, preferibilmente di marca dove dovrebbe essere sinonimo di garanzia, sono facile da installare. E' non corri il rischio di danneggiare la batteria motore con lo schema del circuito che ai postato.
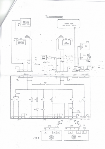
Volevo un consiglio tecnico per chi conosce la centralina del mclouis 560 del 2004 la NE129. Il problema è il seguente ho il pannello solare quindi in sosta e in periodo di fermo all’aperto non ho nessun problema perla Batteria Servizi mentre la Batteria Motore non viene caricata e neanche mantenuta di conseguenza all’aperto specialmente in inverno dopo alcuni giorni la trovo scarica. Di conseguenza leggendo in rete chiedo a chi mi può consigliare se collego con un cavo da 1.5 mm max 2 mm il faston JP10 Ingresso 1 ad il faston J4 della centralina in allegato NE129.1 con questo tipo di collegamento
In risposta al messaggio di sem62 del 25/10/2018 alle 21:09:49No effettivamente come ho postato non si capisce bene, non sono riuscito ad allegare gli schemi e la foto quindi adottando quello schema dalla Batteria Servizi situata al JP10 Ingresso 1 alla Batteria Motore situata sul J4 naturalmente per chi conosce la centralina volevo sapere se è fattibile
Che centra lo schema che ai postato con la centralina ? Se vuoi sfruttare i pannelli per mantenere la carica delle batterie motore e servizi, ti serve un parallelatore, preferibilmente di marca dove dovrebbe essere sinonimo di garanzia, sono facile da installare. E' non corri il rischio di danneggiare la batteria motore con lo schema del circuito che ai postato.
.png)
.png)
In risposta al messaggio di lauraugo del 25/10/2018 alle 23:15:18A parte che anche con il "diodo resistenza" accade la stessa cosa, come mai vuoi utilizzare i J della centralina invece di collegare il circuito direttamente a pochi mm di distanza, ai dadi che serrano BM e BS al parallelatore?
No effettivamente come ho postato non si capisce bene, non sono riuscito ad allegare gli schemi e la foto quindi adottando quello schema dalla Batteria Servizi situata al JP10 Ingresso 1 alla Batteria Motore situata sulJ4 naturalmente per chi conosce la centralina volevo sapere se è fattibile Premetto anche che non posso utilizzare la 220 solo energia solare , è vero del parallelatore a parte i costi ho avuto l'esperienza di un mio amico che nel momento in cui hai una batteria che non va questo interpreta che ha bisogno di carica di conseguenza . non ti carica mai l'altra e così rimani a secco con tutte e due.