In risposta al messaggio di Giapo del 28/03/2025 alle 14:51:55Nel precedente camper avevo installato un DcDc ma senza alcuna modifica alla EBL.  http://www.iz4dji.it/Lavori/Booster_Votronic.pdf mi ero attenuto a uno schema specifico per EBL presente sul manuale di installazione: Â
Buongiorno a tutti, inizio scusandomi perchè so che questo argomento è già stato trattato e me lo sono letto, però ho le idee confuse perchè ci sono delle contraddizioni che mi confondono, quindi chiedo ai più espertise cortesemente hanno la pazienza di aiutarmi, vengo al dunque, ho aggiornato il mio impianto sostituendo la BS con una al litio, il mio camper è equipaggiato con centralina Schaudt EBL 119, ho installato un DC/DC 20A partendo direttamente dalla BM. E qui nascono i dubbi: - ho letto che togliendo il fusibile da 20A denominato lademodul... si inibisce il carica batterie a 220v per la BS e dovrebbe permanere la carica di pochi ampere alla BM; - ho capito che in questa configurazione anche con il motore acceso la BM si carica, ma dalla centralina Schaudt EBL 119 arriva corrente solo per alimentare il frigo a 12V e non va alla BS che altrimenti riceverebbe un tipo di carica non adatto al litio. Spero di essermi spiegato, grazie a tutti. Giacomo
www.iz4dji.it
In risposta al messaggio di IZ4DJI del 28/03/2025 alle 15:57:50Grazie 1000 Tommaso, avevo già visto il tuo intervento, esaustivo e illustrato molto chiaramente, ma nel tuo caso il problema era l'alternatore smart che si metteva a "riposo" e con quel sistema risolvevi il problema della ricarica ma la tua batteria non era al litio giusto? Il mio timore è che con motore acceso la litio venga ricaricata dal cavo positivo di ritorno dall'EBL 119 perchè i 2 positivi BM BS si mettono in parallelo.
Nel precedente camper avevo installato un DcDc ma senza alcuna modifica alla EBL.  mi ero attenuto a uno schema specifico per EBL presente sul manuale di installazione:  La EBL contiene un rele parallelatore, maa motore acceso è sempre chiuso e quindi passante, come se non ci fosse, e su questo si basa questo schema di installazione. - Corretto riguardo alla rimozione del fusibile Internes Lademodul - ovviamente a motore acceso la BM si carica, perchè connessa direttamente all alternatore. - a motore acceso, il D+ attiva il DcDc e quindi se correttamente installato, solo da quello arriva la carica alla BS.
In risposta al messaggio di IZ4DJI del 28/03/2025 alle 15:57:50Complimenti Tommaso, sempre conciso e preciso.
Nel precedente camper avevo installato un DcDc ma senza alcuna modifica alla EBL.  mi ero attenuto a uno schema specifico per EBL presente sul manuale di installazione:  La EBL contiene un rele parallelatore, maa motore acceso è sempre chiuso e quindi passante, come se non ci fosse, e su questo si basa questo schema di installazione. - Corretto riguardo alla rimozione del fusibile Internes Lademodul - ovviamente a motore acceso la BM si carica, perchè connessa direttamente all alternatore. - a motore acceso, il D+ attiva il DcDc e quindi se correttamente installato, solo da quello arriva la carica alla BS.
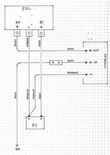
In risposta al messaggio di Giapo del 28/03/2025 alle 20:50:45Ti metto questo schizzo che mi ero fatto, e che semplifica lo schema che ho messo prima. Mi feci questo schizzo per capire esattamente come stavano le cose, e per mettere in pratica l impianto.
Grazie 1000 Tommaso, avevo già visto il tuo intervento, esaustivo e illustrato molto chiaramente, ma nel tuo caso il problema era l'alternatore smart che si metteva a riposo e con quel sistema risolvevi il problema dellaricarica ma la tua batteria non era al litio giusto? Il mio timore è che con motore acceso la litio venga ricaricata dal cavo positivo di ritorno dall'EBL 119 perchè i 2 positivi BM BS si mettono in parallelo. grazie ancora Giacomo
www.iz4dji.it
In risposta al messaggio di ezio55 del 28/03/2025 alle 20:51:44Grazie, fu un lavoro non difficile in se, ma che mi comportò un lungo tempo di ragionamento e programmazione di come fare ogni passaggio nel migliore dei modi (per esempio capire che mi sarebbe servita una crimpatrice idraulica per fare una giunta affidabile). Solo una volta che vedevo tutto chiaramente e che mi ero procurato tutto cio che serviva o che poteva servire, poi mi sono messo a farlo.
Complimenti Tommaso, sempre conciso e preciso. Saluti.
www.iz4dji.it
In risposta al messaggio di IZ4DJI del 28/03/2025 alle 23:24:59Adesso ho capito, infatti come dici tu " un cavo in piu che aggira il DcDc, che non deve essere anche perchè poi il DcDc o non funzionerebbe o si brucerebbe" questa era la cosa che non mi convinceva, adesso è chiaro, hai risolto il quesito, ti ringrazio molto per l'aiuto e complimenti per la soluzione, domani faccio la modifica
Ti metto questo schizzo che mi ero fatto, e che semplifica lo schema che ho messo prima. Mi feci questo schizzo per capire esattamente come stavano le cose, e per mettere in pratica l impianto. Come spero che si riescaa capire, tra BM e BS c'è interposto il DcDc, e quindi alla BS arriva solo la corrente/tensione in uscita dal DcDc, che è gia adatta alla batteria Litio se il DcDc è settato per Litio. In pratica l alternatore capica la BM, da questa parte un cavo rosso che andava alla EBL. Questo cavo viene scollegato dalla EBL e collegato all ingresso del DcDc (io lo ho dovuto prolungare perchè non arrivava). Poi dal DcDc esce (sempre filo rosso) gia una corrente e tensione adatta alla BS Litio, questa corrente entra nella EBL (dove prima era collegata la BM), nella EBL trova a motore acceso il rele parallelatore chiuso, quindi lo attraversa e esce dalla EBL in maniera trasparente, esce dalla EBL sul filo nero (di serie che non ho toccato) e arriva alla BS (Litio nel tuo caso, AGM nel mio). Non sai quanto ci ho dovuto ragionare su per capire bene il giro della corrente che non mi era subito intuitivo. Il fatto che tu abbia la batteria LItio, comporta unicamente che il DcDc deve essere settato per batteria Litio. L importante è che non ci siano collegamento differenti dallo schema, cioè che non sia rimasto un cavo in piu che aggira il DcDc, che non deve essere anche perchè poi il DcDc o non funzionerebbe o si brucerebbe.
In risposta al messaggio di Giapo del 28/03/2025 alle 14:51:55Tommaso al solito ti ha dato un'ottimo suggerimento per montare un DC-DC ma, non devi togliere il fusibile da 20A denominato "internres Ladermodules", lui in tutto questo non c'entra nulla.
Buongiorno a tutti, inizio scusandomi perchè so che questo argomento è già stato trattato e me lo sono letto, però ho le idee confuse perchè ci sono delle contraddizioni che mi confondono, quindi chiedo ai più espertise cortesemente hanno la pazienza di aiutarmi, vengo al dunque, ho aggiornato il mio impianto sostituendo la BS con una al litio, il mio camper è equipaggiato con centralina Schaudt EBL 119, ho installato un DC/DC 20A partendo direttamente dalla BM. E qui nascono i dubbi: - ho letto che togliendo il fusibile da 20A denominato lademodul... si inibisce il carica batterie a 220v per la BS e dovrebbe permanere la carica di pochi ampere alla BM; - ho capito che in questa configurazione anche con il motore acceso la BM si carica, ma dalla centralina Schaudt EBL 119 arriva corrente solo per alimentare il frigo a 12V e non va alla BS che altrimenti riceverebbe un tipo di carica non adatto al litio. Spero di essermi spiegato, grazie a tutti. Giacomo
In risposta al messaggio di Szopen del 29/03/2025 alle 07:58:42Buon giorno, scusa Ciro ma se non tolgo il fusibile quando sono collegato alla 220 il caricabatterie Schaudt mi carica la BS direttamente senza passare dal Dc Dc?
Tommaso al solito ti ha dato un'ottimo suggerimento per montare un DC-DC ma, non devi togliere il fusibile da 20A denominato internres Ladermodules, lui in tutto questo non c'entra nulla. Ciro.
In risposta al messaggio di Giapo del 29/03/2025 alle 08:37:31Ciao, sono 2 circuiti diversi, nelle centraline EBL e' presente un caricabatterie interno LAS 1218 a 230V.
Buon giorno, scusa Ciro ma se non tolgo il fusibile quando sono collegato alla 220 il caricabatterie Schaudt mi carica la BS direttamente senza passare dal Dc Dc?
In risposta al messaggio di IZ4DJI del 28/03/2025 alle 23:24:59Questo dimostra ancora una volta che non è sempre necessario collegare direttamente le due batterie attraverso il DC/DCÂ
Ti metto questo schizzo che mi ero fatto, e che semplifica lo schema che ho messo prima. Mi feci questo schizzo per capire esattamente come stavano le cose, e per mettere in pratica l impianto. Come spero che si riescaa capire, tra BM e BS c'è interposto il DcDc, e quindi alla BS arriva solo la corrente/tensione in uscita dal DcDc, che è gia adatta alla batteria Litio se il DcDc è settato per Litio. In pratica l alternatore capica la BM, da questa parte un cavo rosso che andava alla EBL. Questo cavo viene scollegato dalla EBL e collegato all ingresso del DcDc (io lo ho dovuto prolungare perchè non arrivava). Poi dal DcDc esce (sempre filo rosso) gia una corrente e tensione adatta alla BS Litio, questa corrente entra nella EBL (dove prima era collegata la BM), nella EBL trova a motore acceso il rele parallelatore chiuso, quindi lo attraversa e esce dalla EBL in maniera trasparente, esce dalla EBL sul filo nero (di serie che non ho toccato) e arriva alla BS (Litio nel tuo caso, AGM nel mio). Non sai quanto ci ho dovuto ragionare su per capire bene il giro della corrente che non mi era subito intuitivo. Il fatto che tu abbia la batteria LItio, comporta unicamente che il DcDc deve essere settato per batteria Litio. L importante è che non ci siano collegamento differenti dallo schema, cioè che non sia rimasto un cavo in piu che aggira il DcDc, che non deve essere anche perchè poi il DcDc o non funzionerebbe o si brucerebbe.
In risposta al messaggio di Szopen del 29/03/2025 alle 09:04:17Grazie Ciro, ma a 220v il caricabatterie dell'ELB 119 è idoneo alle litio? Avevo letto in un precedente thread che il tecnico della Shaudt spiegava che con il selettore BS su Gel potrebbe andare bene ma bisognava avere il nulla osta del produttore della batteria, io ho una LiTime 100ah.
Ciao, sono 2 circuiti diversi, nelle centraline EBL e' presente un caricabatterie interno LAS 1218 a 230V. Quando colleghi il camper alla colonnina del campeggio o alla presa di casa, la EBL caricherà la BS a mezzo delcavo di collegamento tra le 2 inevitabilmente sempre presente, allo stesso modo caricherà o manterrà carica la BM con quei circa 2A per mezzo del cavo di collegamento esterno che fa funzionare il frigo a 12V in viaggio (trivalente o compressore che sia) questo cavetto e generalmente protetto da un fusibile da 20A attaccato alla BM. Il fusibile da 20A Internes Ladermodul va rimosso qualora s'intenda collegare un caricabatterie esterno con curve di ricarica idonee alla batteria da ricaricare se non previste dal LAS 1218 interno alla EBL. Il caricabatterie esterno va collegato alla naturale predisposizione presente sulla EBL al Block 7, il fusibile da 20A va rimosso appunto dallo slotInternes Ladermodul e' va inserito nello slot denominato Zusatz Ladegerat puoi vederlo, sulla tua centralina e' il quinto fusibile da 20A a partire dalla destra. Ciro.
https://litime.it/products/12v-...
In risposta al messaggio di rubylove del 29/03/2025 alle 10:00:53Proprio vero, alla fine con un Dc Dc e persone competenti come voi,  trasformi il serbatoio energetico del camper con meno di 500€.
Questo dimostra ancora una volta che non è sempre necessario collegare direttamente le due batterie attraverso il DC/DC Qualche mese fà ho contattato Shaudt e mi hanno risposto la domanda era: avete delle indicazionispecifiche per l'inserimento di un caricabatterie b2b (DC/DC charger) con la vostra centralina EBL 119? Mi hanno mandato esattamente quello che hai fatto tu il convertitore lo inseriscono tra la batteria motore e l'ingresso della centralina Questo dimostra ancora una volta quello che da tanto tempo affermo NON SEMPRE È NECESSARIO FARE QUELLO CHE VA TANTO DI MODA TRA CHI VUOLE FAR SPENDERE SOLDI AI CAMPERISTI In questo caso tutto continua a funzionare esattamente come prima con la differenza che prima arrivava la corrente diretta dall'alternatore, dopo l'inserimento del DC/DC charger arriva gia condizionata dallo stesso Tanto complicato? p.s. non faccio l'installatore e a chi me lo chiede dico di no anche se potrei, sono gia troppo impegnato a fare esperimenti con il mio e poi, a 75 anni dopo aver passato la vita a litigare con i megawatt, adesso litigo in casa con una fuoristrada e un camper, tutti sempre rigorosamente 4x4 e tu lo sai che quelli danno da fare, mi si ciucciano tutta la pensione! Â
In risposta al messaggio di Giapo del 29/03/2025 alle 17:03:40I professionisti sono indispensabili, se sono anche competenti, viceversa meglio un non professionista competente
Proprio vero, alla fine con un Dc Dc e persone competenti come voi,  trasformi il serbatoio energetico del camper con meno di 500€. davvero grazieÂ
In risposta al messaggio di Giapo del 29/03/2025 alle 16:47:25Anche questa abitudine di sostituire i vecchi CB perchè si è passati alla litio.
Grazie Ciro, ma a 220v il caricabatterie dell'ELB 119 è idoneo alle litio? Avevo letto in un precedente thread che il tecnico della Shaudt spiegava che con il selettore BS su Gel potrebbe andare bene ma bisognava avere il nulla osta del produttore della batteria, io ho una LiTime 100ah. grazie 1000

In risposta al messaggio di banoyo del 29/03/2025 alle 18:01:31Tiziano se leggi bene ciò che scritto. Capisci che non ho affatto detto che serve cambiare il caricabatterie per là litio.Â
Anche questa abitudine di sostituire i vecchi CB perchè si è passati alla litio. La lifepo4 non ha una curva di ricarica, utilizza solo 2 soglie ON e OFF. Qualunque CB o alimentatore in grado di fornire un tensione di 14,4Vva benissimo, se uno lo utilizza spesso o in rimessaggio è sufficiente aggiungere un dispositivo da pochi euro per intervenire alle tensioni corrette. Su Amazon a 3 euro c'è questo modello programmabile a piacimento.
In risposta al messaggio di Szopen del 29/03/2025 alle 18:23:53No, non era riferito a te, era in generale...un consiglio a tenere quello che ha e al massimo adeguarlo per un uso intensivo.
Tiziano se leggi bene ciò che scritto. Capisci che non ho affatto detto che serve cambiare il caricabatterie per là litio. Con la EBL un caricabatterie esterno può essere messo anche in parallelo a quello interno, dipende se si ha bisogno di aumentare la corrente di ricarica a 230V. Ciro.Â
In risposta al messaggio di banoyo del 29/03/2025 alle 18:01:31Quello nella foto, può leggere la tensione e quando sale (fine carica) interrompere il d+ del DC/DC, andrebbero però fatte delle prove, l'oggetto e programmabile quindi si potranno fre degli aggiustamenti
Anche questa abitudine di sostituire i vecchi CB perchè si è passati alla litio. La lifepo4 non ha una curva di ricarica, utilizza solo 2 soglie ON e OFF. Qualunque CB o alimentatore in grado di fornire un tensione di 14,4Vva benissimo, se uno lo utilizza spesso o in rimessaggio è sufficiente aggiungere un dispositivo da pochi euro per intervenire alle tensioni corrette. Su Amazon a 3 euro c'è questo modello programmabile a piacimento.
In risposta al messaggio di Szopen del 29/03/2025 alle 07:58:42Certo, il fusibile internes Lademodul non ha nulla a che vedere con l installazione del DcDc, Â
Tommaso al solito ti ha dato un'ottimo suggerimento per montare un DC-DC ma, non devi togliere il fusibile da 20A denominato internres Ladermodules, lui in tutto questo non c'entra nulla. Ciro.
www.iz4dji.it
In risposta al messaggio di Giapo del 29/03/2025 alle 16:47:25Secondo me, e piu che altro guardando vari grafici, mi sono fatto l idea che anche il caricabatterie interno della EBL, possa andare bene per la carica da 230v di una BS Litio.
Grazie Ciro, ma a 220v il caricabatterie dell'ELB 119 è idoneo alle litio? Avevo letto in un precedente thread che il tecnico della Shaudt spiegava che con il selettore BS su Gel potrebbe andare bene ma bisognava avere il nulla osta del produttore della batteria, io ho una LiTime 100ah. grazie 1000
www.iz4dji.it
In risposta al messaggio di IZ4DJI del 29/03/2025 alle 21:45:49Consigliandomi con Ciro, anch'io ho settato la EBL come Pb-Gel dato che i valori sostanzialmente coincidono.Â
Secondo me, e piu che altro guardando vari grafici, mi sono fatto l idea che anche il caricabatterie interno della EBL, possa andare bene per la carica da 230v di una BS Litio. Guarda un grafico di carica da parte di unDcDc: Carica a 14,4V per massimo 1ora e poi si passa a carica a 13,8V qui invece il grafico di carica di una centralina Shaudt EBL (non so il modello ma penso che siano tutte uguali) [img] Su Piombo (Saure) 1 ora (dopo il raggiungimento della piena carica) a 14,3V e poi passa a 13,8V Su GEL 8 ore (dopo il raggiungimento della piena carica) a 14,3V e poi passa a 13,8V A me sembra che i valori siano molto simili e quindi direi compatibili, anzi la EBL un pochino piu bassa e quindi non dovrebbe certo creare danni. Ma è una mia considerazione, non sono un esperto, ne un elettronico, e quindi potrei sbagliarmi.