CamperOnLine
  • Camper
    • Camper usati
    • Camper nuovi
    • Produttori
    • Listino
    • Cataloghi
    • Concessionari e rete vendita
    • Noleggio
    • Van
    • Caravan
    • Fiere
    • Rimessaggi
    • Le prove di CamperOnLine
    • Provati da voi
    • Primo acquisto
    • Area professionisti
  • Accessori
    • Accessori e Prodotti
    • Camping Sport Magenta accessori
    • Produttori
    • Antenne TV
    • Ammortizzatori
    • GPS
    • Pneumatici
    • Rimorchi
    • Provati da Voi
    • Fai da te
  • Viaggi
    • Diari di viaggi in camper
    • Eventi
    • Foto
    • Check list
    • Traghetti
    • Trasporti
  • Sosta
    • Cerca Strutture
    • Sosta
    • Aree sosta camper
    • Campeggi
    • Agriturismi con sosta camper
    • App Camperonline App
    • 10 Consigli utili per la sosta
    • Area strutture
  • Forum
    • Tutti i Forum
    • Sosta
    • Gruppi
    • Compagni
    • Italia
    • Estero
    • Marchi
    • Meccanica
    • Cellula
    • Accessori
    • Eventi
    • Leggi
    • Comportamenti
    • Disabili
    • In camper per
    • Altro Camper
    • Altro
    • Extra
    • FAQ
    • Regolamento
    • Attivi
    • Preferiti
    • Cerca
  • Community
    • COL
    • CamperOnFest
    • Convenzioni Convenzioni
    • Amici
    • Furti
    • Informativa Privacy
    • Lavoro
  • COL
    • News
    • Newsletter
    • Pubblicità
    • Contatto
    • Ora
    • RSS RSS
    • Video
    • Facebook
    • Instagram
  • Magazine
  • Italiano
    • Bienvenue
    • Welcome
    • Willkommen
  • Accedi
CamperOnLine
Camping Sport Magenta
  1. Forum
  2. Tecnica
  3. Cellula abitativa
Galleria

Allestimento Bartolino, Riscaldamento, acqua,

Rispondi
Cerca
SostaGruppiCompagniItaliaEsteroMarchiMeccanicaCellulaAccessoriEventiLeggiComportamentiDisabiliIn camper perAltro CamperAltroExtra
1 20 331
10
rubylove
rubylove
rating

09/06/2015 5659
Rispondi Abuso
Inserito il 22/01/2023 alle: 17:33:24
L'allestimento in autonomia di Bartolino, il nostro furgone, il lavoro è stato abbastanza impegnativo e ci ha assorbito completamente per più di due anni, adesso il mezzo è finito, ci abbiamo già intrapreso alcuni viaggi ma come potrete immaginare, c'è sempre qualcosa  da fare e da migliorare, quindi non sarà mai finito del tutto!

Il mezzo è stato allestito tutto in autonomia, come da mio desiderio, volevo farlo io, per me era il coronamento di un sogno giovanile, il carrozzone per girare il mondo, ai tempi lo immaginavo come quello di Antony Queen nel film La strada

In realtà avrei anche fatto fare alcune cose da altri (i mobili) ma causa Covid siamo rimasti bloccati in casa con il furgone sotto la nostra tettoia a circa 5 metri dalla porta finestra e questo ci ha almeno permesso di poterci  lavorare ma senza poterlo muovere


LA SCELTA

Noi abbiamo sempre viaggiato con una Toyota Land Cruiser serie 9, anche questa camperizzata in casa e con questa macchina abbiamo intrapreso parecchi viaggi in Europa, Asia, Africa, solo in Sud America abbiamo noleggiato più volte ma perché il tempo a disposizione ci impediva  di esportare la nostra (il container si giustifica per almeno 3/4 mesi di viaggio) e al massimo ai tempi arrivavamo a 45 giorni

La camperizzazione della Toyota, con il tempo ha raggiunto il massimo possibile per una macchina fuoristrada, si dorme dentro, cucina esterna  o in una casetta/tendalino, impianto doppia batteria, serbatoio, acqua, doccino, webasto, ecc.. ecc.. ma:  niente bagno, non stai in piedi, dormi come una mummia, cucini fuori, sei sempre all'aperto salvo quando ti infili dentro per dormire e..  gli anni passano.. 

Abbiamo quindi pensato ad un camper, questo doveva essere piccolo ma da starci in piedi, avere un bagno e soprattutto avere delle prestazioni simili alla Land Cruiser, quindi trazione 4x4, ridotte e blocchi, qui mi correggo perché  è impossibile avere le prestazioni di una Land cruiser se non altro per le dimensioni e il peso ma almeno consentirci di fare quasi tutto quello che avevamo fatto con la Land Cruiser, magari con qualche limitazione.

Già tre anni fa questi mezzi erano inavvicinabili e noi avremmo preferito un furgone ad un telaio, anzi veramente io avrei preso volentieri anche un telaio ma Antonella riteneva che il furgone sarebbe stato più facile da allestire e la possibilità che fosse un open space lo avrebbe reso più spazioso di un telaio con cellula, ad esempio la cabina avrebbe potuto avere il o i sedili girevoli, vero che le cellule possono essere comunicanti con la cabina ma di solito il passaggio è stretto (quando c'è) e non può essere considerato proprio un ambiente unico.

Sullo spazio aveva ragione, almeno in lunghezza, sulla facilità di allestimento un pò meno, perché è errato pensare che un furgone sia una scatola rettangolare dove è facile attaccare delle cose, al contrario i furgoni sono all'interno un ammasso di traverse, curve, angoli non retti e asimmetrie, invece le cellule nella maggior parte dei casi all'interno hanno delle pareti piatte e squadrate

Ci siamo quindi messi alla ricerca di un furgone Daily 4x4  e ne abbiamo visti alcuni, tutti mezzi  dal 2001 in giù come anno di fabbricazione, come molti sapranno, Iveco ha smesso di produrre furgoni 4x4 sin dal 2000 (più o meno) producendo solo telai, quindi, furgoni se ne trovano solo vecchi modelli, più recenti non se ne trovano, salvo qualche trasformazione (adesso li sta rifacendo ma a parte il costo, chi li ha visti al momento?)

Mezzi vecchi, prezzi alti, motori Sofim 2500 con poca potenza (anche se molto affidabili) e qualche raro 2800 con qualche cavallo in più ma con prezzi  ancora più alti, alcuni di questi  erano molto belli da vedersi esteticamente, poi ci sarebbero i noti problemi di ruggine che hanno quasi tutti i vecchi  Daily e la difficoltà a reperire i ricambi che non sono in comune con il 4x2.
Tutto questo ci ha fatto desistere più volte nel tempo (visti anche i prezzi)  mi stavo convincendo che avremmo dovuto prendere un Daily di quelli prodotti successivamente con motore F1C 3000 cc a trazione integrale permanente ma questo si trovava solo nella versione telaio e la versione telaio o la trovi già allestita con cellula o devi farla fare e noi preferivamo il furgone anche perché la cellula sarebbe stata un ulteriore costo, insomma temevamo di andare fuori budget di brutto.

Dopo qualche mese è ricominciata la ricerca e ci siamo imbattuti in alcuni furgoni speciali Iveco Daily convertiti da Achleitner, ne abbiamo trovato uno H2 L2 (540) e dopo averci pensato un pò abbiamo deciso di andare in Olanda per vederlo, le dimensioni erano quelle giuste, ci stavamo in piedi ed era abbastanza corto da consentire una grande manovrabilità, confesso che io lo avrei preferito più basso e avrei speso per il soffietto ma non è che ci fosse molta scelta

1(131).jpg


Il furgone era su un piazzale di un grande rivenditore dei dintorni di Almere, provato andava bene ma si vedeva che era un mezzo da lavoro che avevano usato degli operai e che non era stato proprio trattato bene, nonostante fosse del 2014 era un pò segnato e con qualche bugno sulla carrozzeria e sotto aveva una perdita di olio dal differenziale anteriore, inoltre sotto era di uno sporco inaudito, eppure aveva lo storico dei tagliandi fatti in Iveco e delle revisioni RDW, evidentemente gli facevano tutto quello che serviva al cds ma essendo un mezzo da lavoro che probabilmente usavano più operai, nessuno lo curava più di tanto, la carrozzeria aveva una patina giallognola (poi sparita al primo lavaggio serio)

Insomma.. Antonella se lo immaginava già tutto aperto e i due portelloni scorrevoli l'avevano colpita, lo abbiamo comprato e portato a casa, targa provvisoria per 15 giorni con assicurazione della stessa durata, dopo quella data il mezzo andava re immatricolato oppure rimanere fermo, è rimasto fermo circa un anno prima del collaudo in Germania e della successiva immatricolazione Italiana




IL NOME

Bartolino è una presa in giro di un mio caro amico possessore di Toyota e appassionato di viaggi africani come me, quando lo ha visto, lo ha battezzato Bartolino perché a suo parere sembrava il furgone di un corriere (non ha tutti i torti) ovvero nessun fascino da CAMPERVAN e tantomeno da mezzo fuoristrada, visto che era (ed è) bianco, alto e corto e soprattutto privo di preparazioni da mezzo fuoristrada (almeno a prima vista) 

Hanno poi iniziato tutti a chiamarlo Bartolino ed è rimasto quel nome, dopo un pò abbiamo pensato che tutto sommato ci stava bene, visto che noi volevamo un mezzo "Stealty" cioè poco appariscente e che ci permettesse di essere notati poco anche nelle città dove c'è maggiore rigidità da parte della polizia locale, le misure, spesso si trovano stalli da 5.50 e ci saremmo stati dentro

Il furgone è un gemellato, avrei preferito un ruota singola ma ci siamo adattati a quello che abbiamo trovato, compatibilmente con il nostro budget
Il gemellato si presterebbe meno a grandi escursioni di sospensioni  visto che si tratta di mezzi da carico con balestre molto rigide a 6 foglie ma questo pregiudizio è stato poi sfatato con il tempo, casomai è più complicata la gestione delle ruote, visto che due sono dietro ma la trazione e la stabilità sono eccezionali, me ne sono reso conto strada facendo, in ogni caso è trasformabile in ruota singola e la gemellata ha il vantaggio che non sei costretto a fare il portaruota per la sesta, visto che noi facciamo viaggi dove la portamo sempre

CARATTERISTICHE MECCANICHE SALIENTI

immatricolazione M1 Autocaravan 3, 5 T (patente B).
Motore: iveco FPT F1C 3000CC 170 CV euro5b
Cambio: manuale a sei rapporti
ASR, Hill Holder
Trazione: integrale permanente con differenziale posteriore e centrale bloccabili elettricamente e manualmente
Riduttore: (differenziale centrale)  con rapporto ridotte 1:2,5 inseribili manualmente con o senza blocco del centrale
Rapporto ai ponti: 3,92
Passo: 3000



Il mezzo era allestito a laboratorio mobile e all'interno era diviso in tre parti, il posteriore e due piccole ambienti, uno di sicuro come postazione computer e l'altro forse per strumentazione, aveva già installato un webasto airtop 2000 ST con Timer, una seconda batteria, un inverter da 1000 W ad onda modificata oltre ad un impianto elettrico a 230V (credo usassero degli utensili) inoltre aveva all'interno una serie di illuminatori a LED e sul retro un faro aggiuntivo sempre a LED, ovviamente è stato smantellato tutto ma alcune parti sono state riutilizzate


IMG_20190113_104645.JPG
Qui si vede il portellone lato paseggero aperto in fase di smantellamento


Come avevo accennato, avremmo volentieri dato da fare i mobili e le strutture base ma il Covid ha complicato tutto in quel periodo, costruire i mobili per me è stato più impegnativo che fare l'impianto elettrico, il riscaldamento, l'acqua, l'isolamento ecc ecc..

IMG_20190115_145107.JPG

Il retro dopo lo smantellamento dell'allestimento ma con ancora la paratia divisoria, c'èra una ruggine superficiale sul pianale, era dovura al fatto che c'era una guarnizione mancante nel portellone posteriore e filtrava acqua che gocciolava sul pavimento


IMG_20190208_100728.jpg
Qui si vede Bartolino con il pavimento gia trattato con resina epossidica bicomponente e l'inizio della coibentazione, prima di questa sono stati fatti tutti i fori per le finestre e per gli oblo e montati i telai

IMG_20190210_134748.jpg


IMG_20190211_175117.JPG

IMG_20190211_201741.JPG
SEGUE

 
l'analogico non è il vecchio e il digitale il nuovo, no, non è così! Il digitale è solo un modo per rappresentare l'analogico, la natura, è analogica

Modificato da rubylove il 02/05/2023 alle 18:33:17
16
marinox
marinox
30/09/2009 5178
Rispondi Abuso
Inserito il 23/01/2023 alle: 17:02:59
è il mio camper ma da 6 metri e senza il 4x4 e i doppi portelloni , x la cavalleria ho i 130cv . buon lavoro anche con la coibentazione , potrebbe essere che x il reparto notte una tenda a soffietto x avere il massimo della mobilità nel mezzo , MA hai già fatto tutto quindi aspettiamo foto esaustive . come sai ( ? ) mi sono allestito interamente da me il mezzo e nulla è piu gratificante di E' IL MIO MEZZO esattamente come lo volevo e come è venuto E' ....   . inoltre sai esattamente come una riparazione possa avvenire anche se fuori zone abitate . 

carlo
carlo . www CAMPER FAI DA ME , è il modo x vedere il mio camper autocostruito anche in video su you tube
15
gianninotopo
gianninotopo
rating

23/03/2010 4699
Rispondi Abuso
Inserito il 23/01/2023 alle: 17:12:55
Vai con la prossima puntata!!
20
Emme48
Emme48
rating

13/01/2006 24496
Rispondi Abuso
Inserito il 23/01/2023 alle: 17:19:31
Meccanica strepitosa, ottimo il cambio manuale.
H2 va bene, il soffietto ha molti lati negativi.

Come tutti i mezzi usati da tante persone ci sarà qualcosa da controllare, ma è un Iveco e questa è una garanzia.

Purtroppo Iveco non fa più mezzi 4x4 patente B, te hai scovato un esemplare prezioso.

Marco.
Marco

http://www.m48.it

10
rubylove
rubylove
rating

09/06/2015 5659
Rispondi Abuso
Inserito il 23/01/2023 alle: 17:21:43
In risposta al messaggio di marinox del 23/01/2023 alle 17:02:59

è il mio camper ma da 6 metri e senza il 4x4 e i doppi portelloni , x la cavalleria ho i 130cv . buon lavoro anche con la coibentazione , potrebbe essere che x il reparto notte una tenda a soffietto x avere il massimo della
mobilità nel mezzo , MA hai già fatto tutto quindi aspettiamo foto esaustive . come sai ( ? ) mi sono allestito interamente da me il mezzo e nulla è piu gratificante di E' IL MIO MEZZO esattamente come lo volevo e come è venuto E' ....   . inoltre sai esattamente come una riparazione possa avvenire anche se fuori zone abitate .  carlo
...
No no  lo sapevo che te lo eri fatto da solo, beh devo dire che è una gran soddisfazione
non so se ce la rifarei forse si con l'esperienza fatta di sicuro farei meno cavolate
l'analogico non è il vecchio e il digitale il nuovo, no, non è così! Il digitale è solo un modo per rappresentare l'analogico, la natura, è analogica

Modificato da rubylove il 23/01/2023 alle 17:22:52
Sala Silvergruva, la miniera d'argento
Sala Silvergruva, la miniera d'argento
Folgaria d’inverno in camper
Folgaria d’inverno in camper
Francia 2025
Francia 2025
Eksjo, la città di legno
Eksjo, la città di legno
Viaggio in Umbria e dintorni
Viaggio in Umbria e dintorni
Previous Next
10
rubylove
rubylove
rating

09/06/2015 5659
Rispondi Abuso
Inserito il 23/01/2023 alle: 17:25:32
In risposta al messaggio di gianninotopo del 23/01/2023 alle 17:12:55

Vai con la prossima puntata!!
A breve
l'analogico non è il vecchio e il digitale il nuovo, no, non è così! Il digitale è solo un modo per rappresentare l'analogico, la natura, è analogica
10
rubylove
rubylove
rating

09/06/2015 5659
Rispondi Abuso
Inserito il 23/01/2023 alle: 17:34:21
In risposta al messaggio di Emme48 del 23/01/2023 alle 17:19:31

Meccanica strepitosa, ottimo il cambio manuale. H2 va bene, il soffietto ha molti lati negativi. Come tutti i mezzi usati da tante persone ci sarà qualcosa da controllare, ma è un Iveco e questa è una garanzia. Purtroppo Iveco non fa più mezzi 4x4 patente B, te hai scovato un esemplare prezioso. Marco.
Per la meccanica ho speso un bel pò ma solo perchè sono un fissato
in realta serviva una manutenzione ordinaria e invece ne ho fatta molta anche preventiva

Adesso non c'e piu nulla da fare meccanicamente, salvo un'eventuale trasformazione delle sospensioni ma il mezzo va gia bene cosi

quello della patente C è un bel casino, mi consolo pensando che 150 mila euro non li avrei comunque (mezzo + allestimento)
l'analogico non è il vecchio e il digitale il nuovo, no, non è così! Il digitale è solo un modo per rappresentare l'analogico, la natura, è analogica
20
Emme48
Emme48
rating

13/01/2006 24496
Rispondi Abuso
Inserito il 23/01/2023 alle: 18:00:39
In risposta al messaggio di rubylove del 23/01/2023 alle 17:34:21

Per la meccanica ho speso un bel pò ma solo perchè sono un fissato in realta serviva una manutenzione ordinaria e invece ne ho fatta molta anche preventiva Adesso non c'e piu nulla da fare meccanicamente, salvo un'eventuale
trasformazione delle sospensioni ma il mezzo va gia bene cosi quello della patente C è un bel casino, mi consolo pensando che 150 mila euro non li avrei comunque (mezzo + allestimento)
...
Allora i fissati del 4x4 siamo due...ma anche altri tramano simili soluzioni.

La C ad una certa età la declassano, meglio evitare, con 3,5 tonnellate in vacanza ci si va eccome.

Hai speso tanto per modo di dire, la meccanica sono le fondamenta e non si può risparmiare su quelle, meglio un 4x4 in autostrada che un Ducato nel fango.
Chi vuole farsi un camper 4x4 ha deciso che vuole qualcosa in più.

Ma ho una brutta notizia per te, ti sei condannato ai lavori forzati a vita.

Marco.
Marco

http://www.m48.it

10
rubylove
rubylove
rating

09/06/2015 5659
Rispondi Abuso
Inserito il 23/01/2023 alle: 18:12:36
In risposta al messaggio di Emme48 del 23/01/2023 alle 18:00:39

Allora i fissati del 4x4 siamo due...ma anche altri tramano simili soluzioni. La C ad una certa età la declassano, meglio evitare, con 3,5 tonnellate in vacanza ci si va eccome. Hai speso tanto per modo di dire, la meccanica
sono le fondamenta e non si può risparmiare su quelle, meglio un 4x4 in autostrada che un Ducato nel fango. Chi vuole farsi un camper 4x4 ha deciso che vuole qualcosa in più. Ma ho una brutta notizia per te, ti sei condannato ai lavori forzati a vita. Marco.
...
Pensavo che lo sapessi che sono fissato anche io!laugh

La brutta notizia me l'avresti dovuta dare prima! esattamente a gennaio di 4 anni fa!laugh

Sapevo bene come sarebbe andata a finire, io poi avrei anche la Toyota che ha 22 anni e che in questi anni ho trascurato (manutenzione minima) ma dovrò per forza rimetterci mano se voglio ancora fare sabbia e africa (ci penserò)

 
l'analogico non è il vecchio e il digitale il nuovo, no, non è così! Il digitale è solo un modo per rappresentare l'analogico, la natura, è analogica

Modificato da rubylove il 23/01/2023 alle 18:14:54
temisto
temisto
28/02/2022 1443
Rispondi Abuso
Inserito il 23/01/2023 alle: 18:27:01
Bella recensioneyes
Temisto
10
rubylove
rubylove
rating

09/06/2015 5659
Rispondi Abuso
Inserito il 24/01/2023 alle: 19:21:13
In risposta al messaggio di temisto del 23/01/2023 alle 18:27:01

Bella recensione
IL PROGETTO

Quale progetto? non c'èra un progetto! anzi si c'èra ma nella nostra mente, si può fare un progetto quando si hanno: idee chiare, esperienza, competenza e anche conoscenza dei materiali impiegabili, chi fa disegnini al CAD e non ha mai allestito un camper e non lo ha ancora comprato per me dovrà poi fare i conti con il passare dalla carta alla realtà  che spesso costringe a cambiare il progetto passo passo a causa di sopraggiunte difficoltà o irreali visioni teoriche della suddivisioni degli spazi (ad esempio)

Avevamo alcuni punti fermi, questo si, Il primo punto fermo che avevamo era:  il tipo di veicolo (4x4 con ridotte e blocchi ed un rialzo) dimensioni contenute  (anche se a me all'inizio mi sarebbe piaciuto più basso)
Poi è capitato un mezzo alto 2,70 e lo abbiamo preso lo stesso, con il tempo mi sono detto che tutto sommato stare in piedi e avere ancora più di 10 cm dalla testa al soffitto (a mezzo finito) è per me un sogno, quindi va bene, devo solo evitare di andare troppo per boschi..

Inizialmente a me piaceva l'idea del letto orizzontale posteriore con garage sottostante, ecc.. ecc.. ma il daily furgone non lo permette, salvo essere bassini ma io sono 1 metro e 80, oppure  inserire le guance sporgenti che allargano i lati ad altezza letto, in ogni caso questo avrebbe necessariamente spostato il bagno nella zona dietro al sedile guida, prima decisione presa
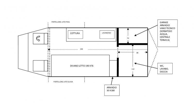
Bagno posteriore+ piccolo garage (Multipiano però!)  e  divano letto  laterale fronte cucina come da schizzo, gli spazi sono questi e su questo mi sono un pò fidato del femminile, onestamente credo si stata la soluzione migliore per noi.
Il divano letto era solo uno spazio utile in quel momento, e l'idea sarebbe stata di farlo con doghe a pettine, ci siamo poi riusciti ma anche la è stata una mezza impresa perché volevamo farlo fare da qualcuno ma ci chiedevano tempi e prezzi assurdi, per il prezzo avremmo anche potuto tapparci il naso ma per il tempo un pò meno, il mezzo volevamo farlo collaudare camper al TUV al più presto possibile perché il rischio era che scadesse anche la revisione e poi sarebbe stato burocraticamente più complicato
Quindi la prima cosa che abbiamo fatto subito dopo aver pulito, verniciato il pavimento, iniziato a posizionare i pannelli, montato gli oblo e le finestre Dometic, è stato disgnare per terra con il nastro adesivo da carrozziere per delimitare gli spazi (molto meglio che farlo su un CAD)
Ne è uscita fuori questa prima bozza di posizionamento, i famosi punti fermi, divano, Cucina, Bagno, garage/tecnico, armadieto stretto e alto tra divano e bagno, ovviamente il cassettone letto dovrà essere anche una bagagliera accessibile dall'esterno con l'apertura del portellone lato guida ma anche dall'interno alzando la rete del letto (poi si vedrà)



Layout-generale%20BARTOLINO.jpgDopo questa decisione abbiamo proseguito con la coibentazione, questa è stata fatta con più tipi di materiali

Sono stato più o meno un mese a leggere e studiare quale fosse il più adatto alle nostre esigenze e dopo un pò mi sono accorto che più mi informavo e più andavo in confunsione laugh questo perchè in materia c'è effettivamente confusione, si dice di tutto e il contrario di tutto, ad un certo punto ho fatto una media e una scelta.

Crediamo dai risultati, di aver fatto un buon lavoro se si considera che si ha a che fare con un furgone che di fatti è un open space e che la cabina anteriore è impossibile da rivestire se non quando sei fermo buttandoci sopra quelle coperte isolanti esterne (che non abbiamo al momento)
In realtà abbiamo una pesante tenda scorrevole a piu strati di neoprene che separa la cabina dalla cellula, quando serve la usiamo

Si è deciso quindi per questo tipo di isolamento

Primo strato isolante dove è possibile installare pannelli rigidi e spessi = XPS alta densità 35 kg per Mc
Primo strato isolante dove non era possibile = Armaflex (spugna elastomerica adesiva) di vari spessori a secondo dei casi, da 3 a 32 mm, questa è molto malleabile e si riesce ad infilare quasi ovunque, l'abbiamo usata dove era impossibile usare del materiale rigido (XPS) soprattutto sui portelloni scorrevoli, su quelli posteriori e sull'imperiale (c'è anche quella)

Secondo strato isolante per  la dispersione da irraggiamento (per non disperdere dall'interno verso l'esterno) Reflectix incollato e sormontato da listelli in legno da 2,5 mmq avvitati sui montanti degli scatolati interni

Ultimo strato di isolamento e finitiura, Doghe in legno Ayous (molto leggero) avvitate tra i listelli, queste rimangono staccate di 2,5 cm dal reflectix in modo da creare una camera d'aria

FINE

facile no?

3(9).JPG
I pannelli di XPS tenuti fermi da dei pezzi di nastro di carta prima di infilare il beccuccio del collante e poi schiumare tutto intorno per bloccarli


5(10).JPG

Una parete dove il risvestimento esterno è finito e manca il reflectix con sopra i listelli dove poi saranno fissate le doghe di Ayous

IMG_20190210_140419.jpg

Bisognava schiumare un pò alla volta perchè fintanto che non si essicava il rischio che oltre a sputare fuori il pannello uscisse anche il blob era molto alto, la schiuma di poliuretano è terribile



IMG_20190308_103803_01.JPG

Qui si vede un portellone dove è stato gia incollato il reflectix e i listelli sovrapposti, su questi andaranno avviate le doghe in Ayous



6(31).jpg


IMG_20190308_103825_01.JPG

Il soffitto ha un telaio dove è appeso tutto, il telaio è fissato agli scatolati in alto è tutto isolato con L'XPS come le pareti poi è stato incollato il reflectix e sopra a questo sono stati avvitati i listelli distanziali da 2,5 mm dove sono avvitate le doghe di Ayous

SEGUE

 
l'analogico non è il vecchio e il digitale il nuovo, no, non è così! Il digitale è solo un modo per rappresentare l'analogico, la natura, è analogica

Modificato da rubylove il 12/03/2023 alle 21:39:40
9
giorgioste
giorgioste
19/07/2016 4780
Rispondi Abuso
Inserito il 24/01/2023 alle: 19:44:38
Nello schema non vedo il tavolo.
Il dubbio è l'inizio della conoscenza.

Argomenti recenti dal forum
Viaggi in Italia
Giugno all'isola del Giglio
Buongiorno a tutti, sto valutando di trascorrere a fine giugno 4 gio...
Nanasso
Ieri alle: 21:16
Accessori
problema ds300 conversione al litio
Ciao a tutti ho montato due batterie al litio su elnagh big marlin ...
Mandracchio
Ieri alle: 19:19
Cellula abitativa
Rimozione cerniera porta cellula
Buongiorno, Ho la porta della cellula del mio mcluis steel 531g del...
Telix636
Ieri alle: 16:39
Viaggi all'estero
Ruta Jubierre in Spagna
Come da titolo, c’è qualcuno che si è già avventurato a fare questa ...
Sparty91
Ieri alle: 14:00
Viaggi all'estero
POLONIA viaggio Estivo
Ciao a tutti, che ne dite di un viaggio in Polonia per questa estate...
RMCamper2020
Ieri alle: 12:11
Viaggi in Italia
Raggiungere le 5 terre
Ciao a tutti, ho un dubbio riguardo la strada da fare per raggiunger...
Maiamaia4
Ieri alle: 07:58
Cellula abitativa
Indicatori di livello frigo Dometic
Ruotando la manopola di destra in senso orario del frigo DOMETIC si...
norbidic
Ieri alle: 03:44
Meccanica
Tappo di carico olio trasmissione cercasi
Su Ducato x244 anno 2004, prima di svuotare l’olio del cambio volevo...
norbidic
Ieri alle: 02:18
Meccanica
Acquisto ricambi usati (specchietto sinistro)
Ciao, mentre tornavamo da Valsesia camper per riparare la porta del ...
LaLory
11/03/26 - 22:15
Accessori
Istallazione dashcam anteriore su Ducato nuovo
Ciao a tutti ho un amico inglese che sta acquistando un campervan El...
solidsnork
11/03/26 - 16:50
Viaggi all'estero
Assicurazione viaggio x estero
Buongiorno a tutti, come da titolo volevo sapere se quando andate al...
cpuffo
11/03/26 - 16:20
Cellula abitativa
Luce cortesia Doral 161 - modello maxxima 063
Buongiorno a tutti, qualcuno di voi ha sostituito la lampada di cort...
daleo
11/03/26 - 13:22
Aree di sosta e campeggi
Campeggi zona Pisa a fine marzo
Ciao a tutti, a fine mese (weekend del 21 marzo) vorremmo fare qual...
Andre78
11/03/26 - 10:33
Accessori
Pannelli solari senza incollaggio
Ciao a tutti, cosa ne pensate di questa soluzione? un pò costosa ma ...
Karbon17
11/03/26 - 10:24
Accessori
Pannello solare incollato sul tetto
Buongiorno a tutti, ho notato che sul mio arca america 745 glg del 2...
Adocaro
11/03/26 - 08:38
10
rubylove
rubylove
rating

09/06/2015 5659
Rispondi Abuso
Inserito il 24/01/2023 alle: 19:57:28
In risposta al messaggio di giorgioste del 24/01/2023 alle 19:44:38

Nello schema non vedo il tavolo.
vero, anche se era importante, in quella fase non avevamo le idee chiare su come fissarlo, sapevamo che doveva andare tra il mobiletto cucina il divano e il sedile ma abbiamo tralasciato (però sapevamo dove saremmo andati a finire)

Poi abbiamo fatto successivamente un tavolo provvisorio (ci vuole per il collaudo) con un treppiede della fiamma che oltre ad essere orribile era scomodisimo, da un paio di anni ho fatto fare quello definitivo che è attaccato al divano e con un braccio, girevole, estensibile e rotante, lo posizioniamo dove vogliamo, bloccandolo con tre manopole (poi metto foto)
l'analogico non è il vecchio e il digitale il nuovo, no, non è così! Il digitale è solo un modo per rappresentare l'analogico, la natura, è analogica

Modificato da rubylove il 24/01/2023 alle 20:01:21
9
giorgioste
giorgioste
19/07/2016 4780
Rispondi Abuso
Inserito il 24/01/2023 alle: 20:08:35
In risposta al messaggio di rubylove del 24/01/2023 alle 19:57:28

vero, anche se era importante, in quella fase non avevamo le idee chiare su come fissarlo, sapevamo che doveva andare tra il mobiletto cucina il divano e il sedile ma abbiamo tralasciato (però sapevamo dove saremmo andati
a finire) Poi abbiamo fatto successivamente un tavolo provvisorio (ci vuole per il collaudo) con un treppiede della fiamma che oltre ad essere orribile era scomodisimo, da un paio di anni ho fatto fare quello definitivo che è attaccato al divano e con un braccio, girevole, estensibile e rotante, lo posizioniamo dove vogliamo, bloccandolo con tre manopole (poi metto foto)
...
Ricordavo che era un vincolo per l’omologazione, e me lo confermi.
Non ho capito esattamente come lo hai fatta ma lo capirò dalla foto laugh
 
Il dubbio è l'inizio della conoscenza.

10
rubylove
rubylove
rating

09/06/2015 5659
Rispondi Abuso
Inserito il 24/01/2023 alle: 22:03:44
In risposta al messaggio di giorgioste del 24/01/2023 alle 20:08:35

Ricordavo che era un vincolo per l’omologazione, e me lo confermi. Non ho capito esattamente come lo hai fatta ma lo capirò dalla foto   
Si il tavolo deve esserci, domani ti mostro come è montato, non ho una foto qui, le devo fare
l'analogico non è il vecchio e il digitale il nuovo, no, non è così! Il digitale è solo un modo per rappresentare l'analogico, la natura, è analogica

Modificato da rubylove il 24/01/2023 alle 23:15:00
9
giorgioste
giorgioste
19/07/2016 4780
Rispondi Abuso
Inserito il 25/01/2023 alle: 08:49:38
In risposta al messaggio di rubylove del 24/01/2023 alle 22:03:44

Si il tavolo deve esserci, domani ti mostro come è montato, non ho una foto qui, le devo fare
Più che altro ero curioso di capire se usavi il divano letto per mangiare, visto che evidenzi anche la rotazione di un sedile.
Sempre che non lo hai chiamato divano letto, che fa pensare più allo svacco che alla seduta, ma lo hai strutturato come i classici divanetti da dinette.
Nel video di COL dei van del CMT ce ne è uno che mi ha ricordato la tua disposizione, ma ha anche un tavolino per usarlo come "ufficio" stando seduto sul sedile che ruota.
Il dubbio è l'inizio della conoscenza.

10
rubylove
rubylove
rating

09/06/2015 5659
Rispondi Abuso
Inserito il 25/01/2023 alle: 10:36:17
In risposta al messaggio di giorgioste del 25/01/2023 alle 08:49:38

Più che altro ero curioso di capire se usavi il divano letto per mangiare, visto che evidenzi anche la rotazione di un sedile. Sempre che non lo hai chiamato divano letto, che fa pensare più allo svacco che alla seduta,
ma lo hai strutturato come i classici divanetti da dinette. Nel video di COL dei van del CMT ce ne è uno che mi ha ricordato la tua disposizione, ma ha anche un tavolino per usarlo come ufficio stando seduto sul sedile che ruota.
...
Infatti è proprio così il sedile ruota, uno si siede su quello, l'altro sul divano a fianco alla schiena del sedile di guida ma dopo aver allentato il piano del tavolo che durante la marcia è gia in posizione ma bloccato con il suo braccio proprio sopra al divano letto

appena sto meglio dall'influenza faccio delle foto
l'analogico non è il vecchio e il digitale il nuovo, no, non è così! Il digitale è solo un modo per rappresentare l'analogico, la natura, è analogica
9
giorgioste
giorgioste
19/07/2016 4780
Rispondi Abuso
Inserito il 25/01/2023 alle: 10:58:23
In risposta al messaggio di rubylove del 25/01/2023 alle 10:36:17

Infatti è proprio così il sedile ruota, uno si siede su quello, l'altro sul divano a fianco alla schiena del sedile di guida ma dopo aver allentato il piano del tavolo che durante la marcia è gia in posizione ma bloccato con il suo braccio proprio sopra al divano letto appena sto meglio dall'influenza faccio delle foto
yes
Il dubbio è l'inizio della conoscenza.

10
rubylove
rubylove
rating

09/06/2015 5659
Rispondi Abuso
Inserito il 25/01/2023 alle: 15:04:27
Il tavolo puo assumere qualsiasi posizione perchè il braccio è ruotante sulla sua base di appoggio, estensibile e anche il piano ruota su se stesso


In viaggio

20230125_141242.jpg


Pranzo

20230125_141142.jpg

Tutto ritratto in cabina  come scrivania che lascia libero il corridoio (qui si nota il braccio)
20230125_141221.jpg

20230125_141056.jpg
 
l'analogico non è il vecchio e il digitale il nuovo, no, non è così! Il digitale è solo un modo per rappresentare l'analogico, la natura, è analogica

Modificato da rubylove il 25/01/2023 alle 15:12:19
9
giorgioste
giorgioste
19/07/2016 4780
Rispondi Abuso
Inserito il 25/01/2023 alle: 15:40:13
In risposta al messaggio di rubylove del 25/01/2023 alle 15:04:27

Il tavolo puo assumere qualsiasi posizione perchè il braccio è ruotante sulla sua base di appoggio, estensibile e anche il piano ruota su se stesso In viaggio Pranzo Tutto ritratto in cabina  come scrivania che lascia libero il corridoio (qui si nota il braccio)  
Grazie. Bel lavoro. Si vede che ci hai ragionato.yes
Il dubbio è l'inizio della conoscenza.

16
marinox
marinox
30/09/2009 5178
Rispondi Abuso
Inserito il 25/01/2023 alle: 16:03:48
ho capito il discorso gamba fissa ma il collegamento gamba /tavolo è provvisto di ulteriore braccio a Z ,in pratica un pezzo si infila sulla gamba con relativo fissaggio e l'altro è una "rondella " dove appunto si infila un pezzo di tubo con relativo blocco ? . x quanto riguarda il piano del tavolo noto che la migliore posizione x pranzare è quella di fronte al sedile girevole ma che è fuori asse rispetto al divano e quindi una difficoltà x poco spazio . guarda le foto del  mio camper ( google ,clicca   camper fai da me ) e vedrai il mio tavolo chiuso x poco ingombro e aperto x pranzare comodi potrebbe esserti  utile come idea ? . ti chiedo l'altezza seduta del sedile  è combaciante con l'altezza del divano ? questo x evitare che uno dei due abbia il piatto sul mento .

carlo
carlo . www CAMPER FAI DA ME , è il modo x vedere il mio camper autocostruito anche in video su you tube
SostaGruppiCompagniItaliaEsteroMarchiMeccanicaCellulaAccessoriEventiLeggiComportamentiDisabiliIn camper perAltro CamperAltroExtra
167k Facebook
343k Instagram
42,6k TikTok
73,3k Youtube
CamperOnLine - Copyright © 1998-2026 - P.Iva 06953990014
Informativa privacy
Loading...

Accedi

Recupera Password
Nuovo utente

Vuoi eliminare il messaggio?

Sottoscrizione

Anteprima

PREFERENZA

Il messaggio è in fase di inserimento.

loading

CamperOnLine

Buongiorno gentile utente,

da oltre 20 anni Camperonline offre gratuitamente tutti i suoi servizi
grazie agli inserzionisti che ci hanno dato la loro fiducia, permettici di continuare il nostro lavoro disattivando il blocco delle pubblicità.

Grazie della collaborazione.

Azione eseguita con successo

Azione Fallita

Condividi

Condividi questa pagina con:

O copia il link