In risposta al messaggio di CCMV del 31/10/2025 alle 20:50:28Hai già corretto se così possiamo dire la linea di alimentazione del frigo a 12V in viaggio, hai un nuovo alternatore da 180A, sicuramente in grado di farsi carico di quei 10-15A cui potrebbero assorbire le altre utenze in cellula, grazie al caricabatterie DC-DC da 50A puoi destinare quella corrente per la ricarica della sola batteria litio, la quale si ritroverà ad essere collegata solo ai vari caricatori.
Wella che bella rispostona! Qui c'è da leccarsi i baffi CB su BUSBAR Ecco, qui mi hai svoltato la settimana! Ero preso malissimo all'idea di dover allungare cavi, sbullonare, sfascettare, ecc, ecc INVERTER Ho fatto subitouna ricerca con Relè Finder ed è venuto fuori il mondo! Ottimo! Vedrò cosa fare ma per adesso...non farò nulla, mi limiterò ad alimentare un sola presa (come prima ) CENTRALINA Ecco, qui ti ho perso...non ho capito che cosa dovrei fare con il relè? Considera che io ho già l'impianto modificato con Litio e con J1+J2 della NE sotto BS e frigo diretto alla BM (modifica M48) ALTERNATORE è suo l'onore/onore di tutto quanto! Quest'estate si è rotto (ponte diodi?) dandomi non pochi problemi per il rientro a casa (cosa che son riuscito a fare solo grazie alla doppia AGM ed ai pannelli solari) Quando l'ho sostituito ho approfittato per metterne uno da 180A (non-smart) Direi che non di dovrebbero essere problemi di approvvigionamento Ampere MODIFICA by Fran50 ...niente, non demordi. Torni ancora sull'argomento Aiutami a capire Ciro, cosa non va nella modifica J1+J2 sotto BS? Io mi sono messo anche a ragionare sui flussi di corrente e non ci vedo assolutamente nulla di problematico E' quasi come un funzionamento standard con parallelatore ingaggiato tra BM e BS, non trovi? Considera che io ho un DC-DC da 50A, una Litio da 300A e l'energivoro frigo sotto BM. Cmq grazie infinite per il tempo che mi stai dedicando! Cri

In risposta al messaggio di Sparviero85 del 31/10/2025 alle 22:43:47Prendi e tieni in seria considerazione quanto suggerito a Cri nel post precedente.
Si su carta sembrava fatta! Nel mio caso destinerei non più di 35A, in quanto ho un alternatore da 120A. Poi come dice Ciro, la corrente non arriva nel modo miglio alla litio. Ma andrebbe bene solo con AGM. A questo punto non mi resta che adottare la modifica J2 su J1, e poi attuare la modifica di M48 per la parte frigo. Grazie
In risposta al messaggio di Szopen del 31/10/2025 alle 23:10:01Ottimo, grazie.
Prendi e tieni in seria considerazione quanto suggerito a Cri nel post precedente. Ciro.
In risposta al messaggio di Szopen del 31/10/2025 alle 23:06:43Ciao Ciro,
Hai già corretto se così possiamo dire la linea di alimentazione del frigo a 12V in viaggio, hai un nuovo alternatore da 180A, sicuramente in grado di farsi carico di quei 10-15A cui potrebbero assorbire le altre utenzein cellula, grazie al caricabatterie DC-DC da 50A puoi destinare quella corrente per la ricarica della sola batteria litio, la quale si ritroverà ad essere collegata solo ai vari caricatori. Come fare? Innanzitutto lasciare collegato il cavo che arriva dalla BM a J1 e lasciare che la centralina si occupi di alimentare i carichi in cellula mentre viaggi, la linea del frigo e' già stato oggetto di modifica per cui, va bene lasciarla cosi. Ti serve un relè a 5 contatti da 250A, in cui i 3 contatti di potenza sono a vite, devi semplicemente montarlo vicino alla centralina: Togli il cavo che arriva dalla BS da J2 e lo colleghi al PIN 87a del relè, con uno spezzone di cavo da 16 mmq opportunamente crimpato con 2 capicorda ad occhiello, colleghi da J2 nella centralina al pin 30 del relè, il negativo ed il D'+ per alimentare la bobina del relè li trovi sulla centralina stessa, Togli la vite dal contatto 87 del relè ed isola per bene il prigioniero, volendo potresti addirittura tagliare proprio quella vite che rimarrebbe lì inutilmente, anche per una maggior sicurezza. Quando avvii il motore per mezzo del D+, il relè chiude il contatto 30 con l'87 cui di fatto non vi e' collegato nulla, la BS è esclusa dall'impianto e le utenze in cellula funzionano grazie all'energia fornita dall'alternatore. Allo spegnimento del motore il relè apre il contatto tra i pin 30 e 87 e' chiude quello tra 30 ed 87a collegando di fatto la BS alla centralina per così continuare e alimentare le utenze in cellula, in questo modo lasci intatta la centralina e le sue naturali funzionalità, compresa la ricarica o mantenimento della BM quando collegato alla rete esterna a 230V. Non so quale caricabatterie esterno a 230V hai intenzione di montare, mi auguro solo sia di buona potenza, almeno tra 700 e 1000 Watt e' dotato di tensione e corrente regolabili. Ciro.
In risposta al messaggio di Elletufo del 03/11/2025 alle 12:05:28Per quanto riguarda il frigo, se ti interessa posso darti una buona dritta in modo da intervenire solo sul retro del frigo, con una piccola spesa di una ventina di euro risolvi il problema.
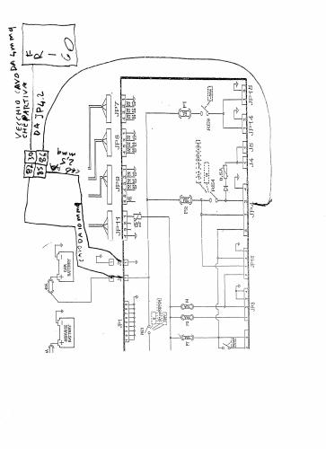
Impianto elettrico Benivan 140UP su ducato 2,3 fine 2018: Alternatore maggiorato da 200A, collegato alla batteria motore Pb 95 Ah, collegata su J1 con cavo da 10 mm2 alla centralina NE185.04, che con parallelatore NVF4-3A-S80aDC12V da 80A collega su J2 la batteria servizi AGM da 120 Ah, caricabatterie NE287 da 17A (non adatto per Litio), pannello solare da 140W Vmp 18,2V nominali collegato ad un regolatore di carica VS2024AU Epever PWM 20A (non adatto per Litio) Frigo Tethford N3141 ad assorbimento (dal manuale risulta un consumo medio di 3,9kWh/24h, sull’etichetta 205W a 12V) collegato alla centralina tramite relè FRA2C-S2 DC12V NO 40A/NC 30A su JP4,2 il positivo e JP4,4 il negativo. Cavo da 4 mm2 Ho cercato, in quasi tutti i modi possibili di portare un cavo dal positivo della batteria motore fino al frigorifero, passando per vie interne al camper. Ho alla fine rinunciato perché per portare gli ultimi 30 cm di cavo al frigo avrei dovuto intervenire bucando la pavimentazione interna in una posizione scomodissima dietro il frigorifero all’altezza della griglia inferiore e poi un altro piano per arrivare al frigorifero con un percorso di 470 cm. A questa via ho rinunciato. In alternativa avrei avuto la possibilità di passare all’esterno del furgone e rientrare da uno scarico (di acqua?) che sta sempre dietro la griglia inferiore del frigo. Per seguire questa via e fare in modo che il cavo sia ben protetto si percorre con la metrica di Manhattan una distanza tra il polo positivo della batteria motore ed il frigorifero di 580 cm. In ambedue i casi avrei dovuto utilizzare un cavo di generose dimensioni 16 mm2 per il passaggio interno oppure 25 mmq per il passaggio esterno. Ho rinunciato, per ora a questa soluzione, anche perché avendo esplorato tutti gli anfratti del camper ho visto che la distanza tra la centralina ed il frigorifero è stata coperta con un percorso euclideo di circa 200 cm accettabile per il cavo di 4 mm2 anche se al limite. Quindi ripristino il contatto originario sulla connessione JP4.2 per il positivo e JP4.4 per il negativo rinforzando la guaina protettiva e aggiungendo una ventola puntata su questo connettore. So che non é il massimo, ma può essere accettabile per far si che il cavo su JP4.2 non fonda la guaina ? La parte della guaina fusa era di circa 3 cm subito dopo la connessione JP4.2 mentre era rimasta integra nella parte attaccata al frigo.
In risposta al messaggio di CCMV del 03/11/2025 alle 10:23:14Bene, ora non ti resta che goderti il camper fino alla prossima primavera, poi si vedrà sul da farsi.
Ciao Ciro, ieri ho completato l'impianto e tutto funziona perfettamente. Ho fatto anche un giretto con il camper...tutto alla big! Grazie 1000 per la dritta sul priority switch: non è complicato ma dopo la vasca che misono appena fatto (smantellamento vecchio impianto a 2xAGM a favore del nuovo con LITIO) mi sa che rimanderò tutto a questa primavera Grazie infinite a te e a tutti per il supporto: QUESTO FORUM E' UNAPOTENZA Cri
In risposta al messaggio di Szopen del 03/11/2025 alle 18:39:01Magari!!
Per quanto riguarda il frigo, se ti interessa posso darti una buona dritta in modo da intervenire solo sul retro del frigo, con una piccola spesa di una ventina di euro risolvi il problema. Ciro.
In risposta al messaggio di Elletufo del 03/11/2025 alle 19:26:11Hai bisogno semplicemente di un convertitore 12-14V come questo sotto, in ingresso accetta tensioni da 9 a 13V ma tiene bene anche fino a 14V.
Magari!! Non aspetto altro. Grazie in via anticipata.
https://it.aliexpress.com/item/...
In risposta al messaggio di Szopen del 03/11/2025 alle 21:47:32Grazie del suggerimento.
Hai bisogno semplicemente di un convertitore 12-14V come questo sotto, in ingresso accetta tensioni da 9 a 13V ma tiene bene anche fino a 14V. In uscita invece ti da 14V stabilizzati con corrente fino a 25A, ben oltre quellarichiesta dalla resistenza per il suo corretto funzionamento, supportando fino a circa 350 Watt avrai anche meno problemi di surriscaldamento poiché non lavorerà mai oltre il 60% Dietro al frigo arrivano i cavi positivi e negativo a 12V, sono sicuramente collegati a dei morsetti, li stacchi e li colleghi ai rispettivi cavi rosso e nero del convertitore, da questi poi il giallo (positivo) ed il nero (negativo) vanno collegati ai morsetti dietro il frigo dove ne hai precedentemente staccati i relativi cavi. In questo modo anche dovesse arrivare una tensione bassa diciamo 10,5-11V verrà sempre convertita in 14V, il frigo funzionerà meglio e tu eviti ulteriori sbattimenti. Ciro.
In risposta al messaggio di Elletufo del 04/11/2025 alle 09:48:45Scusami, avevo capito si trattasse di un problema di bassa tensione al frigo.
Grazie del suggerimento. Forse ho esposto male il mio problema, anzi, certamente non sono riuscito ad esporlo con chiarezza. Il frigo assorbe di 205W, cioè 17A, i quali arrivano da un cavo di 4 mmq dalla connessione JP4della centralina. II primi 3-4 cm del cavo positivo a partire da JP4 si sono fusi per una eccessiva produzione di calore. Il resto dei circa 200 cm di cavo è perfettamente integro e non ha mai compromesso le prestazioni del frigorifero. Esso ha sempre raffreddato in maniera soddisfacente anche quando non l’ho raffreddato prima della partenza, ma ho iniziato a raffreddarlo alla partenza a 12V. Il problema è, e rimane, il surriscaldamento della connessione sul punto JP4. Mi sono chiesto: se dal convertitore escono i 17A richiesti dal frigorifero e forniti dal convertitore, quanti Ampere devono entrare nel convertitore? Mi sono risposto: A perdite zero nel processo di conversione devono entrare 17A che partiranno sempre dal punto JP4. Comunque non essendo io un elettrotecnico, è possibile che stia facendo un ragionamento sbagliato. Saluti luigino
In risposta al messaggio di Szopen del 04/11/2025 alle 13:07:09
Scusami, avevo capito si trattasse di un problema di bassa tensione al frigo. Il tuo problema e' risolvibile con una spesa ancora minore ma serve un po' di manualità, basta un relè da almeno 40A e bisogna agire sul cavo da 4 mmq. Se non sei distante potrei aiutarti. Ciro.
In risposta al messaggio di Elletufo del 04/11/2025 alle 14:19:28Allora Luigino, ti serve un'altra relè da 100A da montare esternamente alla centralina ma vicino ad essa, suggerisco questo relè per il fatto che ha i contatti di potenza a vite e non i semplici Faston.
Il relè che sta sulla scheda della centralina e che attiva il collegamento su jP4 tramite D+ è già da 40A. Si dovrebbe agire quindi solo sul cavo da 4 mmq. Ma come? Ho una manualità accettabile ed una pazienza senza limiti. Abito nel Lazio, in provincia di Latina a Sezze. Grazie luigino
In risposta al messaggio di Szopen del 04/11/2025 alle 17:21:51
Allora Luigino, ti serve un'altra relè da 100A da montare esternamente alla centralina ma vicino ad essa, suggerisco questo relè per il fatto che ha i contatti di potenza a vite e non i semplici Faston. Devi staccarequel cavo da JP4 e prolungarlo fino al contatto 30 del nuovo relè, poi, dal morsetto J1 (quello dov'è ora collegato il cavo che arriva dalla BM per intenderci) devi crimpare un nuovo cavo da almeno 10 mmq della lunghezza sufficiente per arrivare al contatto 87 del nuovo relè. Poi, ti servono 2 spezzoni di cavo, anche da 2,5 mmq vanno bene, ad entrambi i cavi vanno crimpato dei connettori Faston ad entrambi i capi, una volta fatto questo nuovo cavetti ne colleghi uno da JP4 al PIN 86 del nuovo relè mentre l'altro, lo colleghi ad un negativo nella centralina, ne hai di diversi, ad esempio li trovi sui connettori JP2, JP3, sullo stesso JP4, verifica dove ne hai uno libero e colleghi il cavo, l'altra parte del cavo va al PIN 85 del nuovo relè. In questo modo quando metti in moto ed accendi il frigo dal PIN (credo adesso sia il 2) del connettore JP4 non transiteranno piu 17A ma solo pochi mA per alimentare la bobina del nuovo relè, la resistenza 12V del frigo invece, verra alimentata direttamente dall'alternatore/BM. Spero di essermi spiegato abbastanza bene, se hai dei dubbi chiedi pure. Sarebbe il caso di inserire un fusibile da almeno 30A tra il nuovo cavo che collegherai da J1 ( morsetto BM) e contatto 87 del nuovo relė, una sicurezza in più non guasta mai. Ciro.
In risposta al messaggio di Elletufo del 04/11/2025 alle 18:39:11No,,il PIN 86 va allo stesso PIN sul connettore JP4 dove adesso c'è il cavo che va al frigo non devi considerare i 2 come in cascata poichè il primo serve solo ad alimentare la bobina del secondo e' lo deve fare solo a motore in moto.
il cavo che adesso va dal 86 del nuovo relè al JP4 sarebbe opportuno non metterlo su JP4.2 ma metterlo su JP4.1 evitando così di avere 2 relè in cascata? Se si invertono i collegamenti su 87 e 30, succede niente di strano? Il cavo negativo che dal frigo arrivava al JP4.4, dove andrà a finire? Saluti luigino
In risposta al messaggio di Szopen del 04/11/2025 alle 21:24:15Sulla scheda NE 185.4, il connettore JP4:uscita frigo, ha quattro pin:
No,,il PIN 86 va allo stesso PIN sul connettore JP4 dove adesso c'è il cavo che va al frigo non devi considerare i 2 come in cascata poichè il primo serve solo ad alimentare la bobina del secondo e' lo deve fare soloa motore in moto. Peraltro sarebbe utile verificare esattamente quei PIN presenti sul connettore JP4 perché dai manuali risultano esistere almeno 2 tipi di connettori, uno a 3 PIN ed uno a 4 PIN, nella tua centralina questo connettore quanti PIN ha? Per il negativo non credo sia un problema anche perché tutti quei negativi presenti nella centralina sono tutti tra essi collegati in comune. Comunque se pensi ti renda più tranquillo puoi sempre portare un negativo dal retro del frigo al telaio sotto, probabilmente non devi neanche forare. Lo schema che hai fatto e' corretto, procedi così. Ciro.
In risposta al messaggio di Szopen del 31/10/2025 alle 23:06:43Buongiorno,
Hai già corretto se così possiamo dire la linea di alimentazione del frigo a 12V in viaggio, hai un nuovo alternatore da 180A, sicuramente in grado di farsi carico di quei 10-15A cui potrebbero assorbire le altre utenzein cellula, grazie al caricabatterie DC-DC da 50A puoi destinare quella corrente per la ricarica della sola batteria litio, la quale si ritroverà ad essere collegata solo ai vari caricatori. Come fare? Innanzitutto lasciare collegato il cavo che arriva dalla BM a J1 e lasciare che la centralina si occupi di alimentare i carichi in cellula mentre viaggi, la linea del frigo e' già stato oggetto di modifica per cui, va bene lasciarla cosi. Ti serve un relè a 5 contatti da 250A, in cui i 3 contatti di potenza sono a vite, devi semplicemente montarlo vicino alla centralina: Togli il cavo che arriva dalla BS da J2 e lo colleghi al PIN 87a del relè, con uno spezzone di cavo da 16 mmq opportunamente crimpato con 2 capicorda ad occhiello, colleghi da J2 nella centralina al pin 30 del relè, il negativo ed il D'+ per alimentare la bobina del relè li trovi sulla centralina stessa, Togli la vite dal contatto 87 del relè ed isola per bene il prigioniero, volendo potresti addirittura tagliare proprio quella vite che rimarrebbe lì inutilmente, anche per una maggior sicurezza. Quando avvii il motore per mezzo del D+, il relè chiude il contatto 30 con l'87 cui di fatto non vi e' collegato nulla, la BS è esclusa dall'impianto e le utenze in cellula funzionano grazie all'energia fornita dall'alternatore. Allo spegnimento del motore il relè apre il contatto tra i pin 30 e 87 e' chiude quello tra 30 ed 87a collegando di fatto la BS alla centralina per così continuare e alimentare le utenze in cellula, in questo modo lasci intatta la centralina e le sue naturali funzionalità, compresa la ricarica o mantenimento della BM quando collegato alla rete esterna a 230V. Non so quale caricabatterie esterno a 230V hai intenzione di montare, mi auguro solo sia di buona potenza, almeno tra 700 e 1000 Watt e' dotato di tensione e corrente regolabili. Ciro.
In risposta al messaggio di Sparviero85 del 11/11/2025 alle 13:17:21Ciao Giampi,
Buongiorno, mi sono imbattuto in questo nuovo prodotto della NDS Dometic, in particolare del caricatore DCDC PSB 12-40 (40A uscita massima di carica). In pratica è dotato di connessione aux, che permette l’integrazionedel PSB anche in veicoli con impianti di ricarica pre-esistenti. Quando il veicolo è in moto, il relè dell’aux sposta tutti i carichi connessi in centralina sulla batteria motore, bypassando quindi la connessione esistente in parallelo di ricarica, in questo modo la batteria servizi sarà ricaricata in maniera diretta. Allego uno degli schemi proposti sul manuale di installazione, questa è la versione per chi ha un sistema di relè integrato sulla centralina. Ciro credo che sia molto simile, se non del tutto, alla tua soluzione proposta con il relè da 250A a 5 contatti. Opinioni e cosa ne pensate come soluzione definitiva? Grazie
In risposta al messaggio di CCMV del 11/11/2025 alle 13:51:08Cri credo che a motore spento le utenze (essendo collegate alla porta aux) sono già alimentate dalla BS.
Ciao Giampi, potrebbe essere che il PSB non faccia altro che mettere un bel vestito alla soluzione di FRAN50 complicandola? FRAN50 la BM entra nel DC-DC la BS entra in centralina sia su J1 che su J2 - A motore acceso:BM -> DC-DC -> BS -> utenze - A motore spento: BS -> utenze PSB la BM entra nel DC-DC la BM entra in centralina la BS entra nel DC-DC - A motore acceso: BM -> Utenze + DC-DC + BS - A motore spento: BS -> DC-DC -> utenze Ma attenzione! Devi realizzare anche un collegamento che colleghi il DC-DC (ovvero la BS!) sul parallelatore in modo che il DC-DC (anzi la BS) possa alimentare le utenze a motore spento (la stessa cosa della BS su J1 e J2? ) Ne vale la pena? A te la scelta Cri
In risposta al messaggio di Sparviero85 del 11/11/2025 alle 14:05:29Ciao,
Cri credo che a motore spento le utenze (essendo collegate alla porta aux) sono già alimentate dalla BS. E solo quando il motore è acceso che il relè della porta aux sposta i carichi sulla BM. E si fa carico di caricare la BS in modo diretto. Questo è quello che mi sembra aver capito dal manuale. Grazie