CamperOnLine
  • Camper
    • Camper usati
    • Camper nuovi
    • Produttori
    • Listino
    • Cataloghi
    • Concessionari e rete vendita
    • Noleggio
    • Van
    • Caravan
    • Fiere
    • Rimessaggi
    • Le prove di CamperOnLine
    • Provati da voi
    • Primo acquisto
    • Area professionisti
  • Accessori
    • Accessori e Prodotti
    • Camping Sport Magenta accessori
    • Produttori
    • Antenne TV
    • Ammortizzatori
    • GPS
    • Pneumatici
    • Rimorchi
    • Provati da Voi
    • Fai da te
  • Viaggi
    • Diari di viaggi in camper
    • Eventi
    • Foto
    • Check list
    • Traghetti
    • Trasporti
  • Sosta
    • Cerca Strutture
    • Sosta
    • Aree sosta camper
    • Campeggi
    • Agriturismi con sosta camper
    • App Camperonline App
    • 10 Consigli utili per la sosta
    • Area strutture
  • Forum
    • Tutti i Forum
    • Sosta
    • Gruppi
    • Compagni
    • Italia
    • Estero
    • Marchi
    • Meccanica
    • Cellula
    • Accessori
    • Eventi
    • Leggi
    • Comportamenti
    • Disabili
    • In camper per
    • Altro Camper
    • Altro
    • Extra
    • FAQ
    • Regolamento
    • Attivi
    • Preferiti
    • Cerca
  • Community
    • COL
    • CamperOnFest
    • Convenzioni Convenzioni
    • Amici
    • Furti
    • Informativa Privacy
    • Lavoro
  • COL
    • News
    • Newsletter
    • Pubblicità
    • Contatto
    • Ora
    • RSS RSS
    • Video
    • Facebook
    • Instagram
  • Magazine
  • Italiano
    • Bienvenue
    • Welcome
    • Willkommen
  • Accedi
CamperOnLine
Camping Sport Magenta
  1. Forum
  2. Tecnica
  3. Accessori
Galleria

Centralina NE185 Trigano cambio BS AGM con Lifepo4

Rispondi
Cerca
Berger Camping
SostaGruppiCompagniItaliaEsteroMarchiMeccanicaCellulaAccessoriEventiLeggiComportamentiDisabiliIn camper perAltro CamperAltroExtra Attivi
1 20 2
11
gabriele146
gabriele146
31/12/2014 5
Rispondi Abuso
Inserito il 25/12/2023 alle: 21:10:23
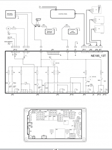
Sto sostituendo le BS AGM con una Lifepo4 e devo bypassare l’originale carica da alternatore della centralina NE185 Trigano per farla caricare da alternatore attraverso DC DC.  Qualcuno ha già fatto questa modifica?

Vi lascio lo schema.

50DE73B5-2257-4259-8F7F-BCD74DDABCC2.png

 

Modificato da gabriele146 il 26/12/2023 alle 20:02:55
14
gduca
gduca
29/11/2011 2093
Rispondi Abuso
Inserito il 26/12/2023 alle: 12:33:30
In risposta al messaggio di gabriele146 del 25/12/2023 alle 21:10:23

Sto sostituendo le BS AGM con una Lifepo4 e devo bypassare l’originale carica da alternatore della centralina NE185 Trigano per farla caricare da alternatore attraverso DC DC.  Qualcuno ha già fatto questa modifica? Vi lascio lo schema.  
Scusami se sono un pò brusco, volevo farmi gli affari miei, ma non puoi fare una domanda così quando sull'argomento è stato versato un fiume di inchiostro con spiegazioni e foto dettagliate.  Porta pazienza ma ti dico di sforzarti di fare una semplicissima ricerca su questo sito.  Non puoi pretendere che si riscriva tutto daccapo perchè non ti sei sforzato minimamente di cercare
Fabrizio
11
gabriele146
gabriele146
31/12/2014 5
Rispondi Abuso
Inserito il 26/12/2023 alle: 16:52:34
In risposta al messaggio di gduca del 26/12/2023 alle 12:33:30

Scusami se sono un pò brusco, volevo farmi gli affari miei, ma non puoi fare una domanda così quando sull'argomento è stato versato un fiume di inchiostro con spiegazioni e foto dettagliate.  Porta pazienza ma ti dico
di sforzarti di fare una semplicissima ricerca su questo sito.  Non puoi pretendere che si riscriva tutto daccapo perchè non ti sei sforzato minimamente di cercare
...
Ho letto i vari post, ma come accade spesso sui forum, c'è una gran confusione. Comunque ho risolto aprendo il relè e interrompendo il circuito con del isolante. 

Grazie

P.S. se vuoi si può cancellare il post, non vedo la.possibilità di farlo in autonomia.
SostaGruppiCompagniItaliaEsteroMarchiMeccanicaCellulaAccessoriEventiLeggiComportamentiDisabiliIn camper perAltro CamperAltroExtra Attivi
Argomenti recenti dal forum
Accessori
Stabilizzatore tensione 12 Volt DC
Ciao a tutti, per questioni di comodità ho questa situazione : batterie al litio da 140Ah ...
Karbon17
Ieri alle: 20:40
Accessori
Perplessità collegamento Stacca Batteria
Ciao a tutti. Penso di aver letto tutti i post riguardanti lo stacca batterie presenti sul...
Tiberius
Ieri alle: 17:43
Cellula abitativa
Pompa dell'acqua in funzione quando scarico acqua
Buongiorno a tutti, sul mio Carthago ho il sistema di scarico dell'acqua chiara costituito...
The monk
Ieri alle: 15:24
Accessori
Cestello gancio traino
Buongiorno a tutti, Qualcuno saprebbe consigliarmi un cestello da gancio traino che (quan...
Anna b
Ieri alle: 10:38
Accessori
Plafoniera mansarda Elnagh Baron 48
non riesco a cambiare la lampadina anche dopo avere estratto il faretto: Elnagh Baron 48. ...
pino1957
Ieri alle: 10:26
Accessori
Ventole raffreddamento frigo dometic
Ciao a tutti! Vorrei fare una domanda che sarà già stata fatta 1000 volte. Ho un dometic 4...
Alessio 83
Ieri alle: 07:57
Cellula abitativa
Help codice autoradio
Ciao a tutta la comunity, non riesco a ricavare il codice della mia radio Grundig. Ho prov...
Fra123
05/04/26 - 23:56
Viaggi all'estero
Multa in Slovenia - attenti a dove la fate ...
Salve a tutti, riporto qui questo episodio che mi è capitato giovedì mattina in Slovenia, ...
girellik
04/04/26 - 20:51
Cellula abitativa
1 pannello 2 regolatori 1 batteria
Si può fare montando i regolatori in parallelo? ......
ligurt
04/04/26 - 20:28
Viaggi in Italia
Sosta a Bergamo
Ciao mi consigliate una sosta a Bergamo? L'ideale sarebbe un parcheggio o area sosta con b...
gianninotopo
04/04/26 - 20:17
Aree di sosta e campeggi
Campeggio o AA per settimana di giugno
Buongiorno a tutti. Chiedo consigli per un campeggio senza troppe pretese o un area attre...
Omar73
04/04/26 - 18:08
Altro sui camper
Grande indecisione su nuovo mezzo...
Buongiorno a tutti, chiedo l'aiuto di chi abbia avuto lo stesso dilemma. Sto considerando ...
franci700
04/04/26 - 17:32
167k Facebook
343k Instagram
42,6k TikTok
73,3k Youtube
CamperOnLine - Copyright © 1998-2026 - P.Iva 06953990014
Informativa privacy
Loading...

Accedi

Recupera Password
Nuovo utente

Vuoi eliminare il messaggio?

Sottoscrizione

Anteprima

PREFERENZA

Il messaggio è in fase di inserimento.

loading

CamperOnLine

Buongiorno gentile utente,

da oltre 20 anni Camperonline offre gratuitamente tutti i suoi servizi
grazie agli inserzionisti che ci hanno dato la loro fiducia, permettici di continuare il nostro lavoro disattivando il blocco delle pubblicità.

Grazie della collaborazione.

Azione eseguita con successo

Azione Fallita

Condividi

Condividi questa pagina con:

O copia il link